近日,广州市工程勘察设计行业协会2024年度优秀工程勘察设计创作方案评选结果揭晓,我院古日新副院长的设计项目获两项三等奖殊荣。
其中,“泰国汉隆海景一号建筑设计”凭借其独特的设计理念、巧妙的空间布局,以自然流动的曲线响应休闲的东南亚度假风情,打造出了一处兼具现代感与地域特色的海景建筑典范,为游客提供了舒适惬意的居住体验,项目的建成将有力促进了泰国罗勇府旅游地产的发展。

泰国汉隆海景一号获奖证书

项目鸟瞰图

高层公寓低点透视

项目在建情况
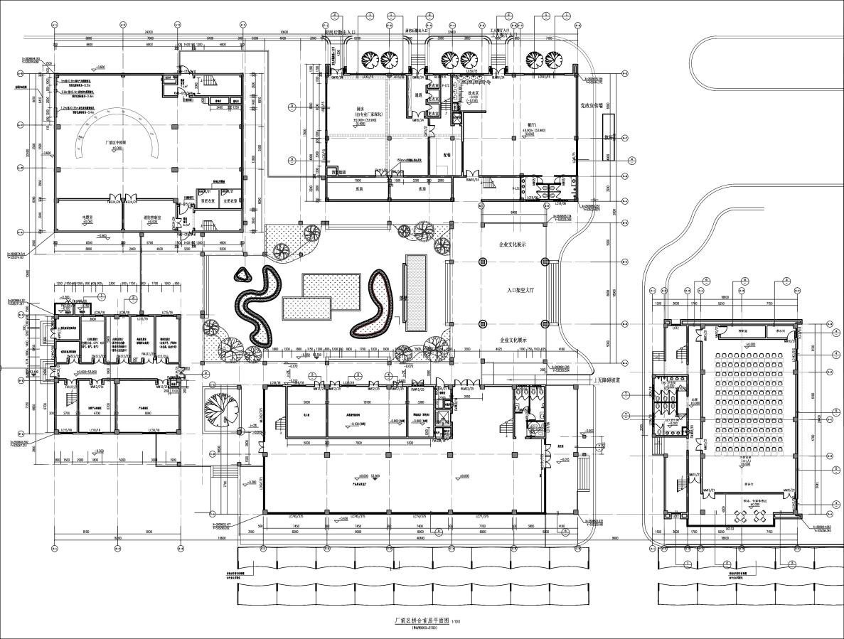
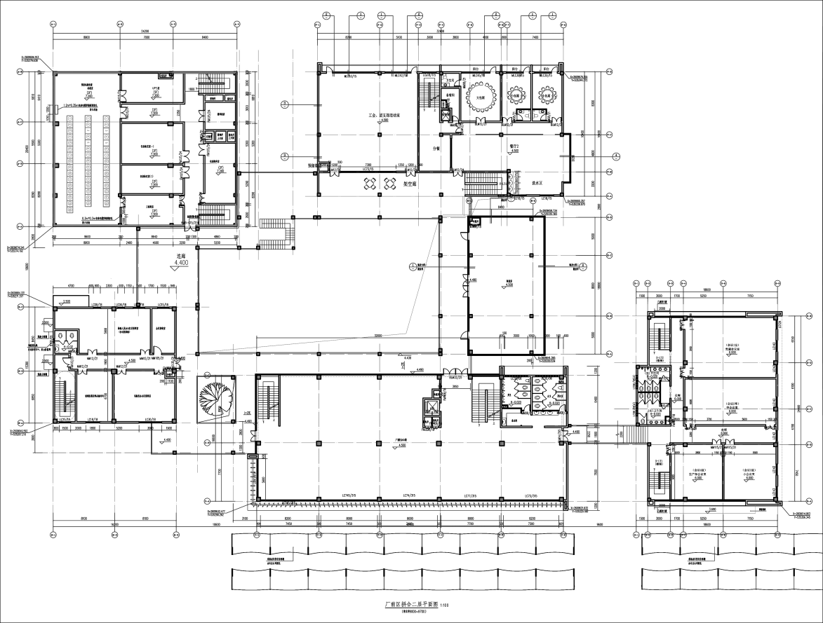
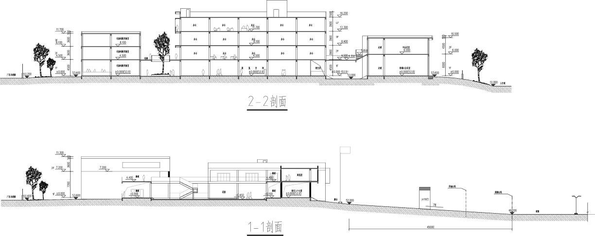
“广西梧州日成林产化工厂前区建筑设计方案”则在满足工厂生产功能需求的基础上,充分考虑了与周边环境的协调性,通过精心规划的景观设计和建筑造型,工厂前区呈现出整洁美观、富有活力的风貌,提升了企业的整体形象,为工业建筑设计领域注入了新的活力与创意。

梧州日成林产化工厂前区获奖证书

梧州日成林产化工厂前区入口透视

首层平面图

二层平面图

剖面图
此次获奖不仅是对我院教师专业能力的认可,更是我院在设计教学与实践融合贯通的生动体现。